Loading

a new benchmark in home design

  • All
  • Classic
  • Courtyard
  • Lifestyle
  • Villas
  • Available
  • Hold
  • Sold
Home details
B1

Type Basic Collection
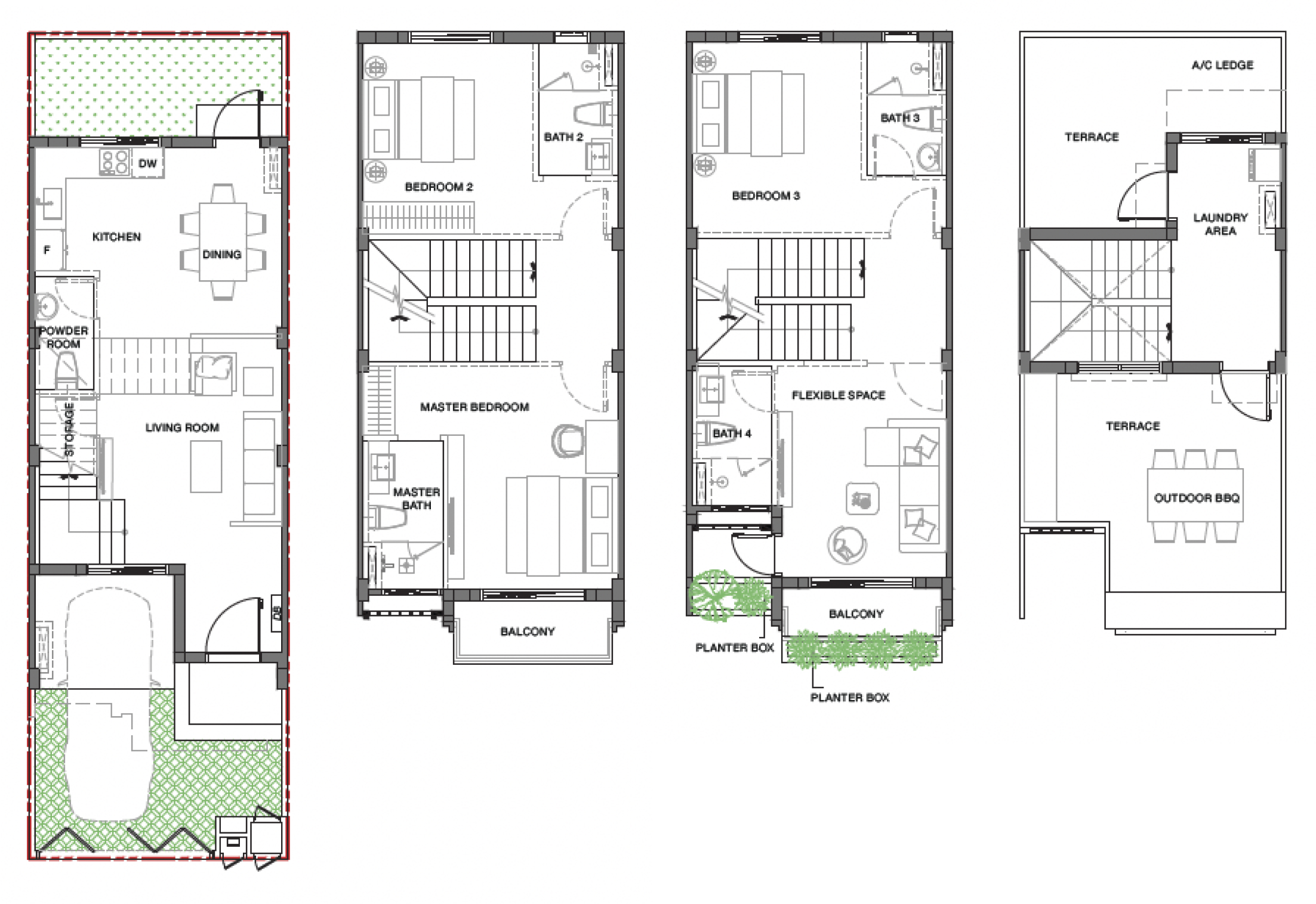
In the heart of our community, our Basic Townhouses offer modern living enveloped by the warmth of community life. Embrace open-concept living, with every space designed for connection. Enjoy spacious outdoor areas, a master bedroom balcony, and a rooftop terrace—all a canvas for personal expression. Tailor your refuge with ensuite baths in every bedroom and a flexible third-level fit for your discretion. The Basic Townhouse is a welcoming space to make memories of a lifetime.

Bedrooms 3
Bathrooms 4
GFA (Gross Floor Area) x
CFA x
Land area x
Storeys x
Car Space(s) x

Floorplans
key-plan